600 Bushwick Ave

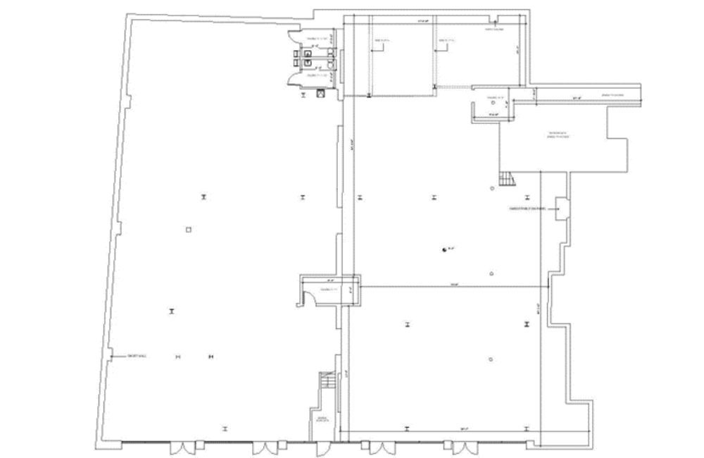
The BIM Engineers played a key role in the development of a residential project in the United States by providing comprehensive BIM/VDC services. The project involved point cloud processing and the preparation of detailed interior and exterior drawings developed to LOD 350. The team worked extensively with point cloud data to create an accurate as-built BIM model, ensuring that all architectural elements were modeled according to the scanned site conditions. The primary focus was on developing precise interior and exterior models, producing coordinated drawings, and maintaining high accuracy throughout the modeling process. Using advanced tools such as Revit, ReCap, JetStream, and TruView, the team efficiently processed laser scan data, developed detailed BIM models, and generated interior and exterior documentation drawings. The BIM models supported design development, coordination, and documentation, helping the project team improve visualization, accuracy, and overall project efficiency. This project highlights The BIM Engineers’ expertise in Scan to BIM, residential BIM modeling, and LOD 350 project development, delivering accurate and reliable BIM solutions for residential projects.

    Key Details

  • Building Type: Residential
  • Country Name: United States
  • Year: 2023
  • Scope: The BIM engineers worked on Point Cloud and preparation of Interior drawing & Exterior.
  • LOD: 350
  • Services: BIM/VDC
  • Softwares: Revit, ReCap, Jet Stream, Tru View